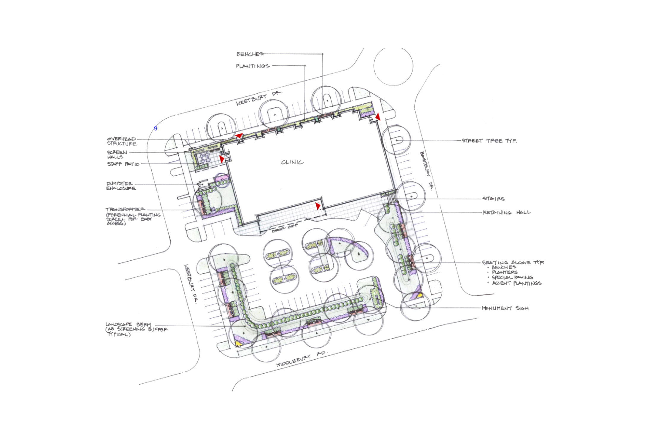
The University of Iowa Hospitals & Clinics (UIHC) had a goal to provide care where their patients live and work. Therefore, INVISION worked with Hodge Construction to design a new 25,000sf clinic that houses Family Medicine, Urgent Care, Psychiatry, and Phlebotomy Services. UIHC wanted a warm, inviting space that was laid out efficiently to allow staff to see patients as quickly as possible. 

With 30 exam rooms in an on-stage/off-stage” model, Scott Boulevard was designed to support the client’s existing, successful workflow process. As a leased space, early and accurate cost estimating set the stage for the project and created clear guidelines for the team.

One unique feature of the design is the full-perimeter clerestory, allowing for natural daylight in all three staff work areas. A natural material palette was carried throughout the exterior and interior design, beginning with wood elements in the canopy and entry space, which also features dramatic curtainwall openings. The design team worked to balance effective layouts with design features that create a great experience for users.